
閥體材質:UPVC 密封材質:EPDM、FKM
控制方式:常開、常閉
動作方式:直動式、先導式
公稱通徑:DN15~50mm
適用流體:弱酸堿 流體溫度:0-50℃
流體壓力:0-0.02MPa、0.01~0.6Mpa、1.0MPa
電源電壓:DC12V、DC24V、AC220V
連接方式:內螺紋、法蘭、活接(雙由令)
臺銘公司專業提供UPVC電磁閥系列產品,歡迎來電咨詢UPVC法蘭電磁閥產品詳細信息,結構尺寸參數、價格等詳情,我們將竭誠為您提供優質的服務!
UPVC電磁閥材質簡介:
上海臺銘公司的UPVC法蘭電磁閥是一款新型的防腐電磁閥、設計緊湊,電磁閥應用在污水處理、農林灌溉、海水淡化、海水養殖、酸堿控制,UPVC塑料電磁閥適用工業過程中的酸性、堿性流體;UPVC又稱硬PVC,它是氯乙烯單體經聚合反應而制成的無定形熱塑性樹脂加一定的添加劑組成;有較強的力學性能,耐磨,難燃,介電性能良好,具有優良的耐腐蝕性能,可適應一般性的腐蝕性流體。
聚氯乙烯UPVC電磁閥產品特性:
UPVC電磁閥材質特點
a. 電磁閥閥體、閥蓋、閥芯材質:UPVC;
b. 閥桿:聚四氟乙烯(PTFE);
c. 密封件:三元乙丙(EPDM)、氟膠(FKM);
d. 適用于弱酸、堿、鹽類流體溶液等一般性的腐蝕性流體,在流體介質溫度不高的情況下(低于50℃),可適應一般性的腐蝕性流體介質,性價比高;
由于產品科學的設計使產品結構更簡單,維護也十分簡單,具有更高的可靠性,更長的使用壽命。
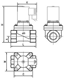
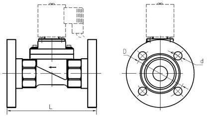
UPVC電磁閥規格尺寸:


|
通徑 (mm) |
連接 方式 |
流量 Cv |
使用 溫度 |
工作 壓力 |
電源 電壓 |
外形尺寸 |
法蘭中 心距D |
|||||
| L | H | W | C | A | K | |||||||
| DN15 | G1/2 | 4.2 |
upvc 0-50℃ CPVC 0-95℃ |
0-0.02MPa 0.01-0.6MPa 1.0MPa |
DC12V DC24V AC220V |
74 | 132 | 63.5 | 63.5 | 16 | 92 | ф64 |
| 法蘭 | 123 | |||||||||||
| DN20 | G3/4 | 5.8 | 80 | 137 | 63.5 | 63.5 | 19 | 92 | ф75 | |||
| 法蘭 | 125 | |||||||||||
| DN25 | G1 | 10 | 100 | 147 | 74 | 74 | 26 | 92 | ф85 | |||
| 法蘭 | 163 | |||||||||||
| DN32 | G1-1/4 | 15.2 | 120 | 171 | 94 | 94 | 30 | 94 | ф100 | |||
| 法蘭 | 183 | |||||||||||
| DN40 | G1-1/2 | 21 | 130 | 180 | 94 | 94 | 32.5 | 94 | ф110 | |||
| 法蘭 | 201 | |||||||||||
| DN50 | G2 | 40 | 155 | 225 | 155 | 155 | 42 | 94 | ф125 | |||
| 法蘭 | 252 | |||||||||||
| DN65 | 法蘭 | 40 | 190 | 50 | ф145 | |||||||
| 290 | ||||||||||||
| 注:以上規格尺寸及重量緊供參考、以實際出貨為準、其它規格尺寸與本公司工作人員聯系 | ||||||||||||
溫馨提示:
本文中所有文字、數據、圖片適用于參考,需要查看更多的UPVC法蘭電磁閥性能參數、結構尺寸、價格等詳情請聯系我們。

聚丙烯PP塑料電磁閥是由丙烯聚合而制得的一種熱塑性樹脂合成制得,無味

ABS塑料電磁閥具有不易堵塞耐酸堿抗腐蝕和使用壽命長等優點,可適應于各

CPVC法蘭塑料電磁閥由聚氯乙烯PVC樹脂氯化改性制得,新型工程塑料

PP塑料電磁閥是由丙烯聚合而制得的一種熱塑性樹脂合成制得,聚丙烯PP電,

雙由令CPVC塑料電磁閥由聚氯乙烯PVC樹脂氯化改性制得,是一種新型